LFS

LFS

Promieniowy wentylator niskociśnieniowy LFS o napędzie bezpośrednim znajduje zastosowanie w dziedzinach wymagających:

  • precyzyjnego dawkowania powietrza,
  • dobrej odporności na różnego rodzaju środki chemiczne.

Zastosowanie

  • w szafach z chemikaliami,
  • w pomieszczeniach znajdujących się w laboratoriach chemicznych, 
  • w digestoriach,
  • w laboratoriach chemicznych, 
  • przy obróbce tworzywa sztucznego,
  • przy pakowaniu termokurczliwym.

Konstrukcja

Wentylator

  • niskociśnieniowy promieniowy o napędzie bezpośrednim.

Wirnik

  • nierdzewny z łopatkami pochylonymi do przodu.
  • wyważany dynamicznie wg ISO 1940-1.

Obudowa

  • spawana z blachy stalowej nierdzewnej 1.4301,
  • tarcza dyspersyjna, rozpraszająca ciepło między obudową a silnikiem,
  • podstawa pod silnik w modelach 200-250,
  • figura LG90.

Maksymalna temperatura tłoczonego medium 200°C.

Temperatura otoczenia silnika od -20°C do 40°C.

Wykonania specjalne

  • dowolna figura LG/RD,
  • silnik na inne niż standardowe napięcie oraz częstotliwość zasilania,
  • silnik o innym stopniu ochrony IP,
  • silnik wyposażony w czujniki lub dodatkowe chłodzenie,
  • temperatura otoczenia silnika poniżej -20°C oraz powyżej 40°C.

Silnik elektryczny

  • asynchroniczny, jednofazowy, 230V, 50 Hz (o mocy do 0,55 kW),
  • asynchroniczny, trójfazowy, 230/400V, 50 Hz (o mocy do 3 kW),
  • asynchroniczny, trójfazowy, 400/690V, 50 Hz (o mocy 5,5 kW),
  • klasa sprawności IE3 - silniki trójfazowe (od mocy 0,75 kW) lub IE2 (poniżej mocy 0,75 kW),
  • klasa sprawności IE3 - silniki jednofazowe,
  • klasa izolacji – F,
  • stopień ochrony - IP55,
  • do regulacji częstotliwościowej (silniki trójfazowe).

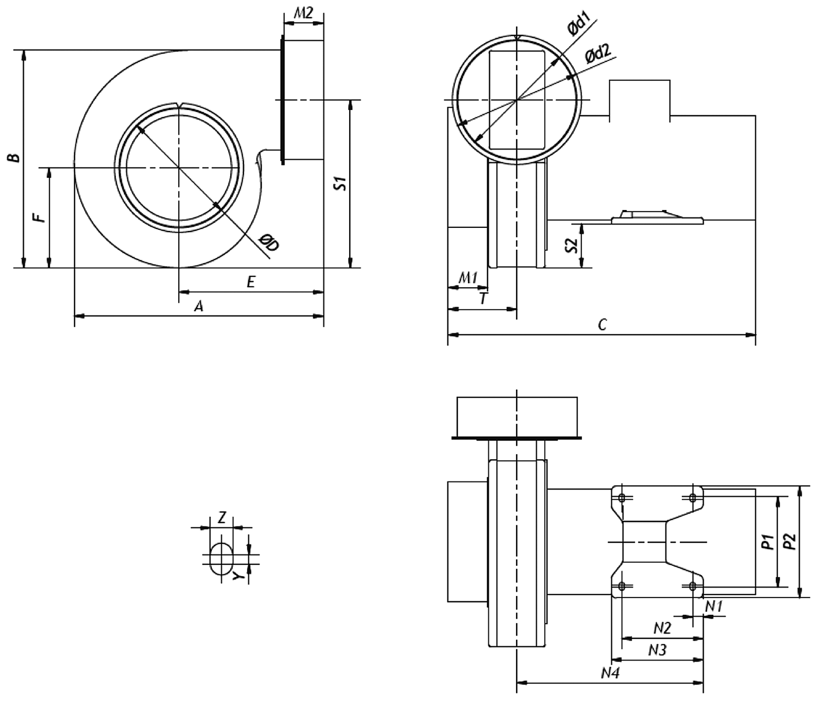
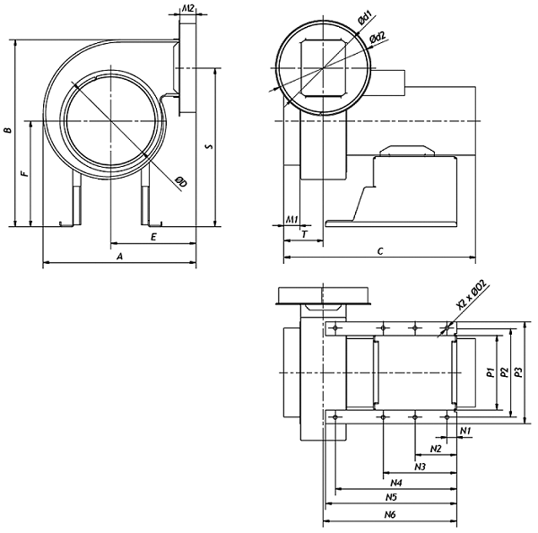
Wymiary

lfs

lfs

 

lfs

lfs

 

lfs

lfs

Charakterystki pracy

lfs

lfs

lfs

lfs

lfs

lfs

lfs

Pliki do pobrania

22 100 47 00